SAI GANESH-S1

Details

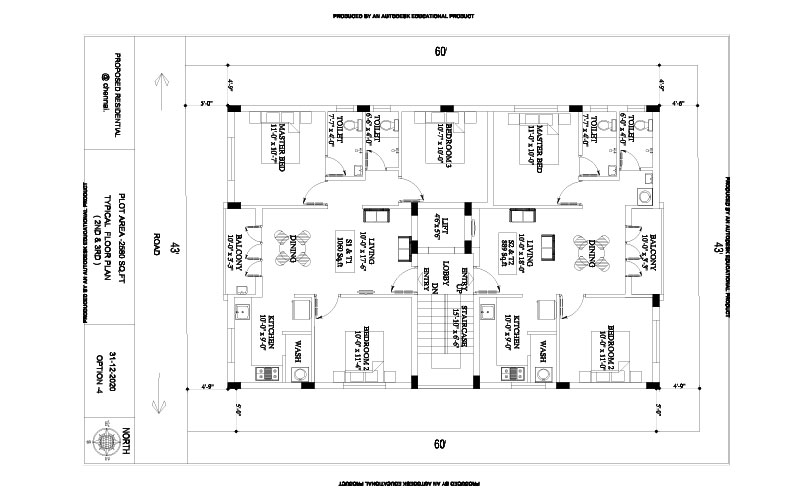
955 Sq.ft 2 Bedrooms 2 Bathrooms Year built: 1 Balcony

Add Your Comment